360° virtuaaltuur + Hoone vaated, plaanid, lõiked

3D virtuaaltuur

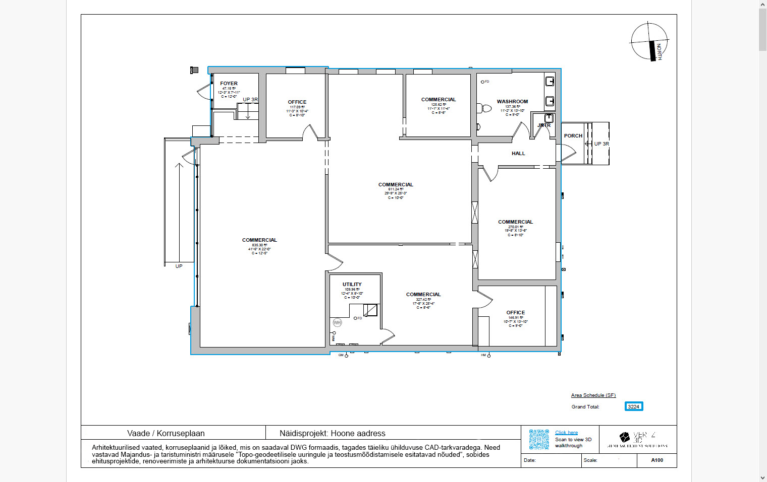
Hoonete vaated, plaanid ja lõiked DWG formaadis

Vertz 3D
 Me ei müü tööriistu – me loome täislahendusi, mis on valmis kasutamiseks nii arvutis kui mobiilis ning vajadusel majutatud meie serverites. Ideaalne hotellidele, restoranidele, muuseumidele ja vaatamisväärsustele.

Funktsioonid

Nimekiri kõikidest lahenduse funktsioonidest
360° virtuaaltuur + Korruseplaanid

DWG / PDF Korruseplaanid

Hoone mõõdistusprojekt on vajalikus: kui hoonel puuduvad projekti joonised või projekt ei vasta tegelikkusele. Mõõdistusprojekti koostamine on tihti nõutud ka näiteks kasutusloa taotlemisel, hoone ehitisregistrisse kandmisel või andmete korrigeerimiseks.

360° virtuaaltuur + Korruseplaanid, vaated ja lõiked

PDF / DWG Korruseplaanid + Vaaed ja lõiked

360° virtuaaltuur

Hotspotid (Näidis 1)

Klikitavad punktid – tekst, pildid, videod, lingid, dokumendid.
NB! Hotspot disaini saab muuta. Klikitavad ikoonide valik on lai. Samuti saab muuta mida hotspotiga avab (video, eraldi aken dokumendi lugemiseks või alla laadimiseks või hoopis helifaili kuulamine.)

360° virtuaaltuur

Hotspotid (Näidis 2)

Klikitavad punktid – tekst, pildid, videod, lingid, dokumendid.
NB! Hotspot disaini saab muuta. Klikitavad ikoonide valik on lai. Samuti saab muuta mida hotspotiga avab (video, eraldi aken dokumendi lugemiseks või alla laadimiseks või hoopis helifaili kuulamine.)

360° virtuaaltuur

Hotspotid (Näidis 3)

Klikitavad punktid – tekst, pildid, videod, lingid, dokumendid.
NB! Hotspot disaini saab muuta. Klikitavad ikoonide valik on lai. Samuti saab muuta mida hotspotiga avab (video, eraldi aken dokumendi lugemiseks või alla laadimiseks või hoopis helifaili kuulamine.)

360° virtuaaltuur

Hotspotid (Näidis 4)

Klikitavad punktid – tekst, pildid, videod, lingid, dokumendid.
NB! Hotspot disaini saab muuta. Klikitavad ikoonide valik on lai. Samuti saab muuta mida hotspotiga avab (video, eraldi aken dokumendi lugemiseks või alla laadimiseks või hoopis helifaili kuulamine.)

360° virtuaaltuur

Hotspotid (Näidis 5)

Klikitavad punktid – tekst, pildid, videod, lingid, dokumendid.
NB! Hotspot disaini saab muuta. Klikitavad ikoonide valik on lai. Samuti saab muuta mida hotspotiga avab (video, eraldi aken dokumendi lugemiseks või alla laadimiseks või hoopis helifaili kuulamine.)

360° virtuaaltuur

Hotspotid (Näidis 6)

Klikitavad punktid – tekst, pildid, videod, lingid, dokumendid.
NB! Hotspot disaini saab muuta. Klikitavad ikoonide valik on lai. Samuti saab muuta mida hotspotiga avab (video, eraldi aken dokumendi lugemiseks või alla laadimiseks või hoopis helifaili kuulamine.)

360° virtuaaltuur

Hotspotid (Näidis 7)

Reaalajas muudetav info:
pind saadaval, broneeritud. Samuti saab lisada mooduli kus saab aktiivselt hinda muuta. 

360° virtuaaltuur

Hotspotid (Näidis 88)

Klikitavad punktid – tekst, pildid, videod, lingid, dokumendid.
NB! Hotspot disaini saab muuta. Klikitavad ikoonide valik on lai. Samuti saab muuta mida hotspotiga avab (video, eraldi aken dokumendi lugemiseks või alla laadimiseks või hoopis helifaili kuulamine.)

360° virtuaaltuur

Radarivaade

Interaktiivne põhjaplaan radarivaatega (kasutaja asukoht ja suund)

360° virtuaaltuur

Dynamic Hotspots (lisateenus)

Kuvab reaalajas infot, kas pind on vaba, broneeritud või müüdud. Lisaks saab lahendusse lisada rendi- ja müügihinnad, mida haldaja saab jooksvalt muuta otse toimivas lahenduses.

360° virtuaaltuur

Into video ja 360° virtuaaltuuri giid

Reklaam- ja tutvustusvideod (avatavad vastavalt määratud loogikale)

Interaktiivsed automatiseeritud protsessid (nt ruumivahetusel info avanemine)
Infotriggerid

3D BIM /360° virtuaaltuur

Välisvaade / Interaktiivne 3D

Loome 3D BIM mudelit interaktiivse lahenduse  – Kui hoonet ei eksisteeri, kuid on olemas BIM mudel või 2D joonised. Saab luua Interaktiivse lahenduse. (eelmüük, eelrent jms)

3D / 360° virtuaaltuur

Hotspotid (Funktsiooni nr3 )

Reaalajas muudetav info:
pind saadaval, broneeritud. Samuti saab lisada mooduli kus saab aktiivselt hinda muuta. 

360° virtuaaltuur

Fotogrammetria / gaussian splatting

Vertz 3D ühendab uusimad tehnoloogiad ja visuaalse täpsuse, et luua kõrglahutusega interaktiivseid virtuaaltuure ja 3D-keskkondi.

360° virtuaaltuur

Live Panorama

Live panorama = liikuv või dünaamiline panoraam, ehk panoraamvideo või animatsioon, mis näitab aja jooksul muutuvat vaadet.
Live panorama on panoraamvaade, mis on jäädvustatud liikuva pildina (videona), et edasi anda ruumi ja aja tunnet korraga.

360° virtuaaltuur

Live Panorama

Live panorama = liikuv või dünaamiline panoraam, ehk panoraamvideo või animatsioon, mis näitab aja jooksul muutuvat vaadet.
Live panorama on panoraamvaade, mis on jäädvustatud liikuva pildina (videona), et edasi anda ruumi ja aja tunnet korraga.

Kommentaaride ja märkmete süsteem

Sisselogimine ja märkmete lisamine 360° virtuaal tuuris

Klient ja asjaosalised saavad ise märkmeid lisada otse lahenduses.  Märkmete kaudu saab suhelda otse, jagada fotosid, videoid ja dokumente. Märkmeid näevad vajadusel vaid asjaosalised. Teised tuurikülastajad märkmeid ei näe.

Kommentaaride ja märkmete süsteem

Kommentaaride ja märkmete süsteem

 Märkme lisamisel saadetakse automaatselt e-kiri isikutele kellede konto on seotud antud märkme kategooriaga. Isik kes on antud märkmega seotud (kategooria) saab liikuda auotmaatselt konkreetsesse asukohta kus märge asub ja seda otse 3D virtuaaltuuris.

Kommentaaride ja märkmete süsteem

Info lisamine märmkesüsteemis

Märkme lisamisel on võimalik lisada ka  PDF-faile, linke või veebisisu, et jagada lisamaterjale.

Mõõtude võtmine 3D virtuaaltuuris (3D mudeliga virtuaaltuur)

Mõõtude võtmine

Mõõtude võtmine 3D virtuaaltuuris (3D mudeliga virtuaaltuur)

Mõõtude võtmine

Mõõtude võtmine 3D virtuaaltuuris (3D mudeliga virtuaaltuur)

Mõõtude võtmine

Top Categories

Popular Courses

Lorem ipsum dolor sit amet, consectetur adipisicing elit, sed do eiusmod tempor incididunt ut labore et dolore magna aliqua. Ut enim ad minim.
[ld_course_list col=3 categoryselector="true" progress_bar="true" order="asc"]

Experience

Lorem ipsum dolor sit amet, consec tetur adipis cing elit. Ut elit tellus, luctus nec ullam corper mattis, pulvinar dapibus.

Education

Lorem ipsum dolor sit amet, consec tetur adipis cing elit. Ut elit tellus, luctus nec ullam corper mattis, pulvinar dapibus.

Certificate

Lorem ipsum dolor sit amet, consec tetur adipis cing elit. Ut elit tellus, luctus nec ullam corper mattis, pulvinar dapibus.
Study at Your Own Pace

Boost Your Career by Learning Skills in High Demand

Expert Tutors

Eaque ipsa quae ab illo inventore veritatis et quasi architecto beatae vitae dicta sunt explicabo.

Verified Profiles

Eaque ipsa quae ab illo inventore veritatis et quasi architecto beatae vitae dicta sunt explicabo.

Pay Per Lesson

Eaque ipsa quae ab illo inventore veritatis et quasi architecto beatae vitae dicta sunt explicabo.

Affordable Prices

Eaque ipsa quae ab illo inventore veritatis et quasi architecto beatae vitae dicta sunt explicabo.

Be in Demand with Our Professional Training

Lorem ipsum dolor sit amet, consectetur adipiscing elit. Duis ac eros ut dui.
Dr. John Smith — Founder & CEO.

Click edit button to change this text. Lorem ipsum dolor sit amet, consectetur adipiscing elit. Ut elit tellus, luctus nec ullamcorper mattis, pulvinar dapibus leo.

Click edit button to change this text. Lorem ipsum dolor sit amet, consectetur adipiscing elit. Ut elit tellus, luctus nec ullamcorper mattis, pulvinar dapibus leo.

Click edit button to change this text. Lorem ipsum dolor sit amet, consectetur adipiscing elit. Ut elit tellus, luctus nec ullamcorper mattis, pulvinar dapibus leo.

Industry Partners